设为首页
|
加入收藏
|
百度地图
公司动态
行业新闻
当前位置:网站首页 - 行业新闻
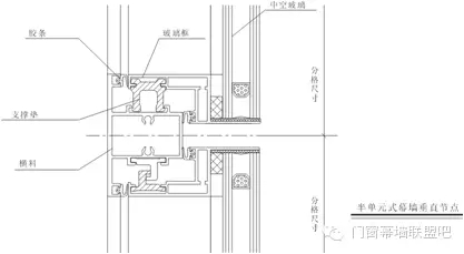
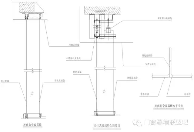
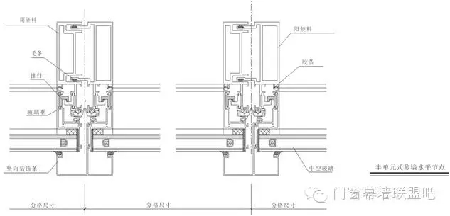
江河幕墙非常全面培训资料!
修改时间:2015-10-09 10:58:54 浏览次数:2131次
江河幕墙非常全面培训资料!内容很不错!(非常适合初学者)
上一条信息:
幕墙工程施工质量验收资料汇总!各种表格记录单!
下一条信息:
江河幕墙针对设计院的幕墙培训资料!
【打印此文】
【关闭窗口】
鄂公网安备 42011102002816号