第一章 概述
第一节 幕墙的发展历史
玻璃幕墙是近代科学发展的产物,是现代主义高层建筑时代(1950-1980)的显著特征。最初具有代表性的“玻璃盒子”是50年代初建成的纽约利华大厦和联合国大厦。
60-70年代,国外高层建筑采用玻璃幕墙迅速增多,许多著名的建筑都玻璃幕墙为外部装修。如世界上一些有名的建筑:芝加哥西尔斯大厦(110层,442m米高)和汉.考克大厦(100层,344m高),都采用了明框玻璃幕墙。
我国建筑幕墙工业从1978年开始起步,历经二十多年的发展,已成为世界第一幕墙生产大国和使用大国。2002年我国生产使用了约800万平方米建筑幕墙 (不含窗墙、金属板和石材外装修、金属板屋面),约占全世界当年用量的2/3左右,到2002年底我国安装了约5000万平方米建筑幕墙,占世界总量的一半还多。
2002年生产使用的建筑幕墙中,玻璃幕墙约占550万平方米(其中隐框幕墙380万平方米、点式玻璃幕墙约70万平方米)。2002年使用的建筑幕墙中由国内幕墙企业生 产的占80%-85%,境外企业生产不到20%。国内幕墙企业已能为国内各类建筑提供所需的各类型的建筑幕墙。
第二节 有关常识
1 土建基础知识
1.1 土建图的识图要点
1.1.1土建图纸的组成

1.1.2 幕墙设计主要使用的建施图和结施图
1.1.2.1建施图:幕墙设计主要参考有建筑设计总说明、总平面图、各层平面图、立面图、剖面图、节点构造详图、透视效果图。
1.1.2.2平面图识图要点:总平面表示建筑的整体外形(俯视)尺寸及所在地理位置。各层平面图示出建筑在各层的布局、尺寸、外轮廓形状,其中以细点划线表示在各层的布局,确定其在各层的几何位置关系、尺寸,称“定位轴线”。
1.1.2.3基本定位轴线一般通过建筑构件的中心线,一般分:横向轴线(从左向右)以阿拉伯数字表示在轴线尽端的圆圈内;竖向轴线(从下到上)以大写英文字母表示。



均在幕墙设计时参考。
1.1.2.10结构平面布置图:表示各楼层的结构标高,结构的几何尺寸、构件布置及编号、楼梯编号、洞口尺寸等,并有与建施平面图类似的索引节点详图编号;采用定位轴线与对应的建施平面图一致。
1.1.2.11构件配筋模板图:根据结构平面布置图上构件的编号可以从相应的构件配筋模板图上找到构件的配筋,准确截面几何形状尺寸,对于常规或不复杂的工程,有时无模板图。
1.1.2.12结构设计总说明:其中列出建筑的结构类型,设计采用的地震烈度和材料等级等。
1.2 建筑等级分类






1.3.2 高层建筑由两级结构组成:


1.3.3 带转换层的高层建筑结构














1.4.4.4 钢筋混凝土建筑结构抗震等级选用












1.6.5.4弧形、折线形的幕墙为保证其曲率和效果面,采取模板放线方法,故模板加工的准确是保证放线方法准确的前提,注意:寻找辅助层抄平安装模板支架,模板位置及调整、固定等(模板固定时要用铁线将其与支架紧紧固定在一起,千万不要移动模板或损坏模板)。


2.CAD 制图标准
2.1 范围
本标准规定了沈阳远大铝业集团内部进行CAD制图的基本要求。
本标准仅适用于沈阳远大铝业集团内部CAD制图。
2.2 引用标准
下列标准所包含的条文通过在本标准中引用,而构成为本标准的条文。本标准发布时,所示版本均为有效。所有标准都会被修订,使用本标准的各方应探讨使用下列标准最新版本的可能性。
GB4457.1-1984 机械制图 图纸幅面及格式
GB4457.3-1984 机械制图 字体
GB4457.4-1984 机械制图 图线
GB4457.5-1984 机械制图 剖面符号
GB4458.4-1984 机械制图 尺寸标注
GB12212-1990 焊缝符号的尺寸、比例及简化表示法
GBJ1-86 房屋建筑制图统一标准
GBJ104-87 建筑制图标准
GB324—1988 焊缝符号表示法
GBJ105-87 建筑结构制图标准
2.3图样画法总则
2.3.1绘制分格、立框、埋件图、节点(除尺寸标注以外)图样时,遵照《建筑制图标准》
(GBJ104-87)标准制图。
2.3.2绘制加工图、组装图、零附件图及工艺、工装图样时,遵照机械制图标准制图。
2.3.3绘制的所有图样按正投影法绘制,并采用第一角投影法。
2.3.4在同一类图样中,一般采用同一种制图标准。
2.3.5按技术制图中的标准绘图比例绘制图样。
2.4 CAD制图的基本要求
2.4.1图纸幅面尺寸
绘制图样时,优先采用表1中规定的幅面尺寸;必要时可沿长边加长,对于A0、A2、 A4幅面的加长量应按A0幅面长边的1/8的倍数;对于A1、A3幅面的加长量应按A0幅面短 边的1/4的倍数。A0及A1幅面也允许同时加长两边。详见表1


2.4.4 剖面剖切符号的规定
2.4.4.1分格、立框、埋件图、节点图样按《建筑制图标准》(GBJ104-87)标准绘制。
2.4.4.1.1剖切符号采用粗实线绘制,剖切位置线的长度宜为6—10mm;剖视方向线应垂直于剖切位置线,长度为4—6mm。
2.4.4.1.2剖面剖切符号的编号采用阿拉伯数字,按顺序由左至右、由下至上连续编排,并应注写在剖视方向线的端部。
2.4.4.2加工图、组装图、零附件图及工艺、工装图样按机械制图标准绘制。
2.4.4.2.1剖切位置线采用粗实线绘制、长度宜为4—6mm;剖视方向线采用细实线与箭头组成,并垂直于剖切位置线,长度宜为6—8mm。
2.4.4.2.2剖面剖切符号的编号采用大写英文字母A、B、C......,按顺序由左至右、由下至上连续编排,并应注在剖视方向线的端部。
2.4.4.3绘制时剖切符号不宜与图面上的图线相接触。
2.4.4.4转折的剖切位置线,在转折处如与其它图线发生混淆,应在转角的外侧加注与该符号相同的编号。
2.4.5 断(截)面剖切符号
2.4.5.1断(截)面的剖切符号,只用剖切位置线表示;以粗实线绘制,长度宜为6—10mm。
2.4.5.2断(截)面剖切符号的编号,按《建筑制图标准》(GBJ104-87)标准绘制的图样采用阿拉伯数字表示;按机械制图标准绘制的图样采用大写的英文字母表示,按顺序连续编排,并应注写在剖切位置线的一侧;编号所在的一侧为该断(截)面的剖视方向。
2.4.6 断开界限的规定
2.4.6.1分格、立框、埋件图样按《建筑制图标准》(GBJ104-87)标准采用折断线绘制。
2.4.6.2节点、加工、组装图、零附件图及工艺、工装图样按机械制图标准采用双点划线绘制。
2.4.6.3图线宽度均为细线,中断处两双点划线间距为2mm,断开线的延伸量为5mm。
2.4.7 索引符号与详图符号
2.4.7.1图样中的某一局部或构件,如需另见详图,应以索引符号索引(见图1.a)。索引符号的圆及直径均应以细实线绘制,圆的直径为10mm。
2.4.7.2索引出的详图,如与被索引的图样同在一张图纸内,应在索引符号的上半圆中用阿拉伯数字注明该详图的编号,并在下半圆中间画一段水平细实线(见图1.b);如与被索引的图样不在同一张图纸内,有两种情况:
2.4.7.2.1在一张图纸中有一个详图,在索引符号的圆中注该详图所在的图号(见图1.c)。
2.4.7.2.2在一张图纸中有二个或二个以上图样时,应在索引符号的上半圆中用阿拉伯数字注明该详图在此图纸上的编号,并在下半圆注明该详图所在图纸的图号(见图1.d)。
2.4.7.3索引出的详图采用公司标准图,应在索引符号的圆中注标准图的图号(见图1.e)。


2.4.8 定位轴线端部的圆
应以细实线绘制,直径为8mm,详图上可增为10mm。
2.4.9 标高符号的规定
2.4.9.1标高符号应以细实线绘制。个体建筑物图样上的标高符号,应按图4.a所示形式绘制,如标注位置不够,按图4.b所示形式绘制。标高符号画法见图4.c、图4.d所示。
2.4.9.2标高符号的尖端,应指至被注的高度。尖端可向下,也可向上(见图5所示)。



2.4.11对称符号
对称符号用细实线绘制,平行线的长度为8mm,平行线的间距为2mm,平行线在对称线两侧的长度应相等(见图10所示)。

2.4.14字体的规定
字高选取根据图样及出图比例而定,字型统一执行沈阳远大铝业集团技术中心标准化部提供的字体类型(字体类型名称:YDZX)。
2.4.15图样的标题栏中签字格式
规定如下: 签字:××× 日期:年.月.日 例如:2001.03.28
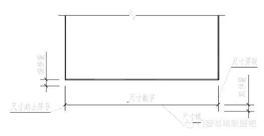
2.4.16尺寸注法
2.4.16.1图样上的尺寸包括尺寸界限、尺寸线、尺寸起止符号和尺寸数字(见图12所示)。
2.4.16.2尺寸界限、尺寸线均采用细实线绘制。

图12 尺寸标注
2.4.16.3尺寸标注型式统一执行沈阳远大铝业集团技术中心标准化部提供的远大标注类型(标注类型名称分别为:机械L、机械R、建筑L、建筑R)。
2.4.16.4分格、立框、埋件图样的尺寸起止符号均采用粗斜短线绘制,其倾斜方向与尺寸界限成顺时针45°角。
2.4.16.5节点图、加工图、组装图、零附件图及工艺、工装图样的尺寸起止符号;半径、直径、角度与弧长的尺寸起止符号,均采用箭头表示。
2.4.17焊缝符号
焊缝表示严格按《焊缝符号》(GB324-1988)、《焊缝符号的尺寸、比例及简化表示法》(GB12212-1990)的规定执行。
2.4.18剖面符号
在剖视、剖面图及立面图中域内填充图案采用《CAD制图填充图例》中所定的符号。
“域内填充”均采用细图线、标准粉色。
3 设计文件编号规定
3.1 设计图纸及材料表进行统一编号,并且必须标明工程名称或项目名称、图号等。
3.2 设计员对各类图纸、表格、设计进展及编号情况做分类,随时记载,避免编号重复。
3.3 幕墙设计图纸编号方法


4.幕墙、门窗定型产品 产品型号及材料代号编写规则
4.1 范围
本标准规定了幕墙、门窗定型产品的产品型号和幕墙、门窗用铝合金型材、附属产品等材料代号的编号规则。
本标准适用于幕墙、门窗定型产品的产品型号及材料代号的编写。幕墙、门窗定型产品的产品型号用3位数字表示,铝合金型材代号用6位数字表示,附属产品代号用5位数字表示。
本标准不适用于未定型的幕墙、门窗产品的产品型号及材料代号的编写。对于未定型产品的型材、胶条代号的编写,仍沿用以前型材(YL-****)、胶条(YJ-***)代号的编号规则。
4.2 规范性引用文件
下列文件中的条款通过本标准的引用而成为本标准的条款。凡是注明日期的引用文件,其随后所有的修改单(不包括勘误的内容)或修订版均不适用于本标准,然而,鼓励根据本标准达成协议的各方研究是否可使用这些文件的最新版本。凡是不注明日期的引用文件,其最新版本适用于本标准。
Q/YDL 22.001 幕墙门窗定型产品 设计工作导则

14 -- 框架隐框幕墙;
15 -- 框架明框幕墙;
16 -- 框架半隐框(显横)幕墙;
17 -- 框架半隐框(显竖)幕墙;
18 -- 花岗岩石材幕墙;
19 -- 微晶石幕墙;
20 -- 钢拉杆支撑体系点支式玻璃幕墙;
21 -- 钢拉索支撑体系点支式玻璃幕墙;
22 -- 桁架支撑体系点支式玻璃幕墙;
23 -- 单钢梁支撑体系点支式玻璃幕墙;
24 -- 索杆混合支撑体系点支式玻璃幕墙;
25 -- 肋驳接玻璃幕墙;
26 -- 吊挂式全玻璃幕墙;
27 -- 橱窗;
30 -- 双层幕墙;
31 -- 陶土板幕墙;
32 -- 陶瓷板幕墙;
33 -- 千思板幕墙;
40 -- 采光顶;
41 -- 金属屋面(含开合屋面);
42 -- 遮阳系统;
43 -- 栏杆;
44 -- 电气、电子组装产品;
48 -- 综合;
49 -- 备用。
4.3.1.3 产品系统序号为同一类中幕墙产品的顺序号。
说明:
(1)单元幕墙产品系统的名称编号为10-13(3位数字的前2位);
(2)框架幕墙产品系统的名称编号为14-17(3位数字的前2位);
(3)石材类幕墙产品系统的名称编号为18-19(3位数字的前2位);
(4)全玻及点玻幕墙产品系统的名称编号为20-29(3位数字的前2位);
(5)其它幕墙产品系统的名称编号为30-39(3位数字的前2位);
(6)其它幕墙类装饰产品系统的名称编号为40-47(3位数字的前2位);
(7)综合幕墙产品系统的名称编号为48(3位数字的前2位);
(8)备用的幕墙类产品系统名称编号为49(3位数字的前2位)。
注:幕墙产品型号示例
101 -- 表示单元隐框幕墙的第一种定型产品;
112 -- 表示单元明框幕墙的第二种定型产品;
162 -- 表示框架半隐框(显横)幕墙的第二种定型产品;
173 -- 表示框架半隐框(显竖)幕墙的第三种定型产品;
183 -- 表示花岗岩石材幕墙的第三种定型产品;
201 -- 表示钢拉杆支撑体系点支式玻璃幕墙的第一种定型产品;
263 -- 表示吊挂式全玻璃幕墙的第三种定型产品。

4.3.2.1.2 产品系统名称
50 -- 非断热内平开门;
51 -- 断热内平开门;
52 -- 非断热外平开门;
53 -- 断热外平开门;
54 -- 非断热推拉门;
55 -- 断热推拉门;
56 -- 非断热地弹门;
57 -- 断热地弹门。
4.3.2.1.3 厚度系列(扇框)
1 -- 45;
2 -- 55;
3 -- 60;
4 -- 70;
5 -- 80;
6 -- 90;
7 -- 100;
8 -- 125;
9和0 -- 备用。
说明:
(1)非断热铝合金门产品型号的第二位为偶数(3位数字的第2位);
(2)断热铝合金门产品型号的第二位为奇数(3位数字的第2位);
(3)如果备用的厚度系列(扇框)代号9和0经定义后仍不满足新定型产品的编号要求时,新定型的铝合金门的产品型号应在760-774之间(详见2.2.3条)。
注:铝合金门的产品型号示例
501 -- 表示45系列非断热内平开门;
533 -- 表示60系列断热外平开门。

4.3.2.2.2 产品系统名称
60 -- 非断热内平开(内倾)窗;
61 -- 断热内平开(内倾)窗;
62 -- 非断热外平开窗;
63 -- 断热外平开窗;
64 -- 非断热推拉窗;
65 -- 断热推拉窗;
66 -- 非断热外上悬窗;
67 -- 断热外上悬窗;
68 -- 非断热中悬(立转)窗;
69 -- 断热中悬(立转)窗;
70 -- 非断热折叠窗;
71 -- 断热折叠窗;
72 -- 非断热提拉窗;
73 -- 断热提拉窗。
4.3.2.2.3 厚度系列(扇框)
1 -- 50;
2 -- 55;
3 -- 60;
4 -- 65;
5 -- 70;
6 -- 75;
7 -- 80;
8 -- 90;
9 -- 100;
0 -- 备用。
说明:
(1)非断热铝合金窗产品型号的第二位为偶数(3位数字的第2位);
(2)断热铝合金窗产品型号的第二位为奇数(3位数字的第2位);
(4)如果备用的厚度系列(扇框)代号0经定义后仍不满足新定型产品的编号要求时,新定型的铝合金门的产品型号应在760-774之间(详见2.2.3条)。
注:铝合金窗的产品型号示例
601 -- 表示50系列非断热内平开(内倾)窗;
657 -- 表示80系列断热推拉窗。
4.3.2.3 其它铝合金门窗
按照2.2.1条(铝合金门)和2.2.2条(铝合金窗)编写产品型号时,若厚度系列(扇框)无法满足新定型产品的编号要求,则产品型号应在760-774之间,每一种型号代表一种新定型的铝合金门窗产品。
4.3.2.4 其它门窗
其它门窗的产品型号在775-799之间,每一种型号代表一种新定型的其它门窗产品。
4.3.3 其它类产品
其它类的产品型号在800-989之间,每一种型号代表一种新定型的其它类型产品。

4.4.1.2 型材类别
1 -- 竖框;
2 -- 横框;
3 -- 插芯;
4 -- 翻窗边框、扇框;
5 -- 附框;
6 -- 扣板、压板、托板;
7 -- 百叶;
0 -- 其它。
4.4.1.3 型材序号为型材在同一子类中的顺序号。
说明:
(1)一般竖框编号为100-129(6位数字的后3位);
(2)转角竖框编号为130-199(6位数字的后3位);
(3)一般竖框插芯编号为300-329(6位数字的后3位);
(4)转角竖框插芯编号为330-399(6位数字的后3位);
(5)2.0mm壁厚的横框编号为200-249(6位数字的后3位);
(6)2.5mm壁厚的横框编号为250-299(6位数字的后3位)。
注:单元(框架)幕墙用铝合金型材代号示例
141105 -- 表示框架隐框幕墙的竖框型材;
141171 -- 表示框架隐框幕墙的转角竖框型材;
141306 -- 表示框架隐框幕墙的竖框插芯型材;
141371 -- 表示框架隐框幕墙的转角竖框插芯型材;
141206 -- 表示框架隐框幕墙的2.0mm壁厚的横框型材;
141256 -- 表示框架隐框幕墙的2.5mm壁厚的横框型材;
141401 -- 表示框架隐框幕墙的边框(或扇框)型材;
141504 -- 表示框架隐框幕墙的附框型材;
141605 -- 表示框架隐框幕墙的扣板(或压板、托板)型材;
182604 -- 表示花岗岩石材幕墙的托板型材;
141704 -- 表示框架隐框幕墙的百叶型材。






















第二节 幕墙设计流程解析及注意事项
1 确定设计小组
1.1加强设计员培训、学习机会,提高设计人员水平。
1.2 填写《设计任务承包书》
2 与销售、技术部接口
2.1 合同交底。
2.2 中标方案的交底。
2.2.1 明确分格、节点形式
2.2.2 工程范围
3 设计输入
3.1 合同及附件
3.2 报价单、成本单。
3.3 中标方案
3.4 土建图纸
3.5 招标文件
3.6 销售部、技术部特殊情况,注意事项,文字说明。
3.7 有效的效果图
4 设计开始
4.1 由主任确定小组人员分工。
4.2 研讨方案、提出中标方案的异议。
4.3 按要求编制设计计划。
4.4 成本分析
4.5 发现问题,以书面材料上报总工,由总工上报总经理。根据总经理批示执行。
注意问题:
1 对总价包死工程注意校核面积准确性。
2 计划合理性及倒排工期制度。
3 对多次报价工程应校准最终报价。
4 对设计输入文件应全面熟悉了解,避免二次设计方案出现与合同及
投标报价不符合事情发生。
5 现场测量、放线
5.1 设计小组:提供测量方案。
5.2 安装部:项目经理、安装队现场测量。
5.3 计调中心:组织协调、监督、检查
注意问题:
1 设计部确保测量方案可行性。
2 安装部确保测量及时性、准确性。
6 施工方案设计
6.1 总体设计说明
6.2 分格图
6.3 结构节点图
6.4 设计计算书
注意问题:
1 分格、节点是否满足建筑美学、人体功能等要求。
2 分格、节点图是否满足加工、安装方便、结构简单的原则。
3 设计书是否满足国家有关标准规范。
4 经济性是否合理。
7 方案评审
7.1 设计功能审查:重点审查所设计幕墙是否符合建筑美学,人体功能学及使用功能。
7.2 工艺审查:重点审查尺寸链,安装工艺,维修更换加工工艺。通过审查决定是否需要放大样及做好工艺工装准备。
7.3 对经济性、强度及其他规范,是否与合同相符进行审查。
注意问题:
1 由主任工程师填写评审申请。
2 评审后填好评审记录。
3 评审经总工批准后通行。
4 对未通过评审,需修改方案,重新评审。
8 图纸签字确认
8.1 分格
8.2 节点
8.3 计算书
8.4 必要时需要材料封样。
8.5 确认后下发需放大样图纸、放大样管理制度。
注意问题:
1 方案确认前必须通过公司内部评审。
2 注意业主签字的有效性。
3 工作量是否符合合同范畴。
4 有无改动,是否影响工期和成本。
5 有问题及时上报总工。
6 合理的签图协调费。
7 通过主任工程师对幕墙建筑、美学、人体功能及各种性能知识掌握,有理有据,说服设计院及甲方,力争提前签字确认。
8 在此阶段销售部全力配合。
9 图纸确认后需放大样的,由工艺主持,设计负责下图及细目定额。
9 施工方法交底
9.1 向生产系统各部门交底。
9.2 计调中心提出组织设计要求。
9.3 各部门对设计的具体要求。
9.4 体现“先配后序”原则,满足总体进度要求,明确施工顺序由计调确定设计文件如何分层,分部分下发。
注意问题:
1 交底会由计调中心主持,主设计负责全面讲解工程情况,计调中心
根据掌握的各方面情况,形成会议纪要,各部门执行。
2 会议纪要决定设计顺序,安装顺序,并决定具体工程项目,定额分
成几块或几层下发。
10 设计文件下发
10.1 设计控制质量原则
10.2 “先配后序”原则
10.3 符合现场施工顺序原则
10.4 解决各部门按图工作,不需分解图纸的问题。
11 现场配合及服务
11.1 技术交底,向现场人员讲清技术要求,填写《工程技术交底单》。
11.2 技术指导,协助现场人员读图,指导现场施工。
11.3 处理反馈的问题原则:及时、准确,保工期、保质量。
11.3.1 简单问题由主任工程师负责,1小时内解决答复。
11.3.2 一般性问题由主任工程师负责,当日解决。
11.3.3 严重性问题,上报总工办,由总工负责协调解决。
注意问题:应及时、准确、有耐心。
12 车间配合及服务
12.1 解决生产加工过程中发现的设计问题。
12.2 解决生产加工过程中因加工失误出现的问题。
12.3 协助工艺解决生产加工过程中发现的工艺性问题。
13 其他部门配合及服务
13.1 配合质检部判断各种材料偏差及加工偏差是否影响幕墙使用、性能及效果。
13.2 配合供应部做好材料检验入库及配套厂家结算所需数量面积统计工作。 13.3 配合计调中心做好增补及变更报价工作。
注意问题:
1 服务及时准确,态度端正。
2 不影响产品质量。
3 尽可能避免有可能给公司带来的损失。
4 提供合理、有效的变更手续。
14 设计变更及下发
14.1 设计不合理或有误。
14.2 甲方设计院变更。
14.3 安装工艺、加工工艺性不好,无法保证产品质量。
14.4 经济性不合理。
注意问题:
1 变更技术准确。
2 变更表面齐全。
3 不影响产品产量。
4 不给公司造成损失或尽可能减少损失为原则。
5 甲方、设计院变更时,通知计调中心及时办理变更增补报价手续。
15 设计总体说明
15.1 总体设计要求应有前瞻力,避免现场发生不应出现的失误。
15.2 总体设计要求应有的放矢,能解决工艺、供应、生产加工及安装阶段的问题。
15.3 设计总体说明体现单项工程特点,从建筑学、美学、人体功能、幕墙使用性能及结构特点方向阐述。
15.4 因方案阶段多次调整,下发图纸前应注意更改合理性、全面性,使图纸处于正确统一状态。
16 相容性实验
16.1 由主任工程师填写相容性实验申请单,由计调中心安排供应部完成。
注意问题:
1 填写申请单要及时、准确。
2 喷涂材料相容性问题。
17 三性实验
17.1 由主任工程师确定方案
17.1.1实验技术要求和等级要求
17.1.2 分格图、节点图、计算书。
17.1.3 材料综合细目定额表
17.2 甲方、设计院或监理认可。
17.3 由计调中心下达任务单,研究所实施完成。
注意问题:
1 招、投标文件对三性实验特殊要求。
2 喷涂材料相容性及粘接力问题。
18 提料单
18.1 实行“先配后序”的原则。
18.2 数量准确、合理。
18.3 按层分类原则。
注意问题:
1 提料单应有技术要求。
2 材质、颜色、表面处理方式、加工方式与合同相符。
3 注明有无余量及余量数量单列。
4 套材时按层,同时考虑生产加工效率问题,如型材下料时控制在三种规格以内。
19 埋件设计
19.1 埋件位置图。
19.2 埋件加工图。
19.3 钢件综合细目定额表
注意问题:
1 后补埋件:尽可能用角型,使锚固栓受拉变拉、剪组合,提高安全系数,同时用普通膨栓,降低成本。
2 下埋件时充分考虑分格、节点形式。
3 埋件位置应考虑土建结构配筋情况,特别是预应力结构。
4 埋件大小、厚度、锚栓长度应考虑埋件受力状况。
20 立框阶段
20.1 立框位置图。
20.2 型材、钢件、附件加工图。
20.3 钢件、附件、型材综合细目定额。
20.4 套材表
注意问题:
1 大面、边角立框大样。
2 型材与埋件连接件,伸缩缝,插芯关系尺寸链。
3 型材与横框连接形式,位置关系及重要尺寸链。
4 沉降缝、伸缩缝、变形缝,立框时应注意。
5 立框尺寸与分格、节点统一,因为安装时一般以立框为准。
21 层间封修、避雷
21.1 加工图。
21.2 钢件、附件、型材综合细目定额表。
21.3 套材表。
注意问题:
1 考虑封修后内装施工及外饰抹灰或贴砖的效果及配合关系。
2 是否符合国家规范。
3 避雷点宣布布置在边、角、棱位置,对凸出幕墙外的装饰物应特殊考虑。
22 板块下发
22.1 分格编号图。
22.2 楼层板块表。
22.3 加工、组装图。
22.4 材料综合细目定额表。
22.5 套材表。
注意问题:
1 板块下发顺序应考虑工程造型,施工条件及生产加工周期等因素。
2 胶、3M胶带不同季节使用状况是否应用底漆。
3 分格编号图要求清晰、完整、顶封修、转角部位吊顶或重叠部分分
格图等应有编号。
4 注意尺寸链和配合关系。
23 安装附件
23.1 加工图。
23.2 材料综合细目定额表。
注意问题:
1 边、角、棱、翻窗等部位注意“冷桥”及内外视效果问题。
2 边、角、棱、翻窗等部位采取相应措施,降低胶的用量。
3 冬季施工时注意胶量控制,同时提醒项目经理若不能打胶,及时返库,以免过期浪费。
24 竣工图
24.1 整理竣工图装订成册。
24.2 核算面积。
24.3 图纸质量存档。
24.4 刻光盘存档。
24.5 产品使用与维护说明书
24.5.1 结构上的使用与维护。
24.5.2 清洗注意事项。
24.5.3 售后服务跟踪卡及售后服务电话。
24.5.4 工程备用材料台帐。
24.5.5 建立工程备用材料库。
注意问题:
1 资料齐全,决不许丢、漏项现象发生。
2 根据各工程合同报价、变更、增补方式不同,分别统计。
3 资料存档应及时。
4 注意业主对竣工图纸的特殊要求。
25 单项工程总结
25.1 总结经验,分析成功之处,提高个人和部门水平。
25.2 同时总结教训,避免类似问题发生。
25.3 完善产品结构。




















1.组件长宽尺寸公差:
2.对角线尺寸公差: >2000时为±2mm, ≦2000时为±1.5mm
3.组框接缝高度差: ≦0.3mm,装配间隙: ≦0.4mm
2.4.6 玻璃付框组合图































