1、石材幕墙下料
石材幕墙是我们设计中最为常见的幕墙种类之一。随着城市建筑的不断丰富和发展,当前的石材幕墙有造型越来越复杂的趋势,例如北京新京润、汇福健康论坛等项目。这一方面是建筑市场的要求,另一方面也是由石材在建筑行业的应用历史和其灵活多变的加工性能来决定的。下面具体结合北京新京润工程的局部石材幕墙谈一谈下料过程中的一些经验:

(1)对于类似上图中的异形石材,首先要全面放样,重点要考虑转角和阳台等凸起部位,确保进出部位的尺寸足够调整。
(2)石材开槽宽度7mm或6mm,同时要保证开槽后不得有崩裂、偏斜等现象,槽口应打磨尖角,槽内光洁。
(3)在做石材提料单的时候,必须准确测量加工尺寸,保证下料准确。特别是遇到如下图形式的石材,更需要我们下料准确,否则现场根本不能处理这种磨边,无法满足其外饰面要求。

(4)石材提料单中一定注明石材的表面处理方式以及有效厚度,根据石材合同,按不同的石材种类、表面处理方式和加工方式,将石材分类做单,以便于厂家的分类加工运输和结算;同时要详细标注每页提料单所对应的石材编号图,以便相应部门供货及安装分拣。
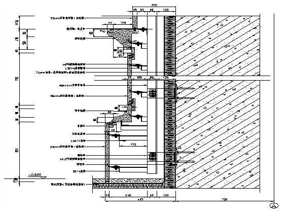
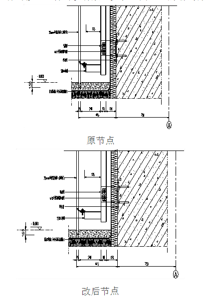
1.1 通过对此部位下料,我个人感觉是否可以将节点继续进行深化,比如在底部利用1.5mm的镀锌钢板进行封修,这样可以有效避免从地面返上的潮气将钢框氧化。

2、铝板和铝型材提料
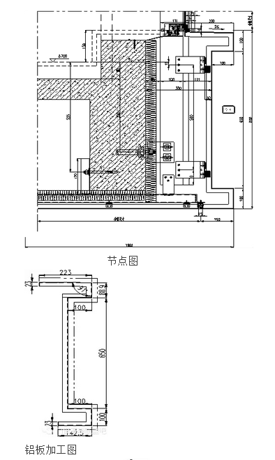
(1)铝板加工图和提料单:除了供应商为个别特定的厂家外,铝板加工图中应给出角片位置数量,由铝板厂家一并提供;对于复杂的铝板,要通过三维放样,利用三视图投影将复杂铝板的造型表达清晰,同时给出轴测图,以便于自己对照检验和车间理解制作,减少不必要的后期频繁的电话解释或补充说明,提高工作效率;铝板尽可能做成折边盒板,以提高铝板的平整度,如下图;铝板提料单中必须注明基材代号,每块铝板也必须给出经甲方确认的准确色号。


(2)铝型材提料单:在铝型材提料单中一定要在技术说明或其他相应的位置准确填写铝型材材料代号、表面处理方式(喷涂的要给出喷涂面积)、色卡号,线重等必要信息,同时保证型材套材利用率不低于97%。
(3)幕墙立框:要仔细查阅土建结构图,并严格按照土建结构图和现场反馈的测量图画立框图,不能猜测或凭空想象,而且画图时一定要遵照1:1的比例。
(4)幕墙立框细目:做立框细目的时候,转接件等附件所用钢板,要在技术说明中写明,本细目实际用的面积,用过后剩余多少面积。如果是少量的,细目定额中最好不要整张的提板材料,用以前细目中的剩余,这样可以避免不必要的浪费。立框需要的各种附件的加工尺寸及定额数量要准确,要注意填写钢和铝附件的表面处理方式,写明每页细目所对应的立框图。
(5)下料单:在做铝型材下料时,要认真核对风格尺寸,尤其是在下铝竖框的时候要格外仔细,仔细核对层间中的埋件位置,根据直切、斜切、拉弯等不同加工形式,留出相应的余量,切勿将铝竖框下短。同时也要注意铝型材表面的处理方式。
2.1立框过程中遇到的问题
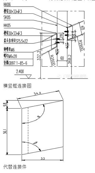
(1)下图北立面局部立面图,此处弯弧的形状的铝板,需要将玻璃下面的横框弯弧,那么正常用的横竖框连接件无法使用。

(2)解决方法
方法1: 用5mm厚的铝单板折弯代替连接件的好处是不用在连接件与竖框之间加PP垫片,缺点是工程用的量比较少,铝板厂家采购周期较长。
方法2: 我个人觉得是否可以采用4mm厚的钢板代替5mm铝单板折做弯连接件,其好处是钢板比较容易采购,缺点是铝型材与钢材双金属腐蚀,要求在铝框和钢板之间加PP垫片。

方法3: 用30x33xδ5厚的槽铝代替正常横竖框用的连接件。

3、弯弧玻璃应注意的问题
(1)因为LOW-E膜具有只能压缩不能拉伸的特性,所以内弯弧中空玻璃和外弯弧中空玻璃的LOW-E膜放置是有区别的:也就是说外弯弧的LOW-E膜只能放在中空玻璃的第二面。内弯弧玻璃的LOW-E膜只能放在中空玻璃的第三面。(如下图)
鉴于以上原因,弯弧玻璃的LOW-E膜放置位置不同,在立面上玻璃会有色差,这在我们以后工程刚开始的时候,必须向业主及设计师阐明,或者取消相应弯弧位置,保证立面效果。


(2)在做玻璃提料的时候,要仔细检查玻璃的分格尺寸,因为玻璃大部分分格都是一样的,为避免玻璃大面积错误,所以一定要小心谨慎,严格校核自己做的玻璃提料单,同时也要注意缩尺时提料单中表格公式的编辑。在料单中要详细注明每张玻璃所对应的玻璃编号图号。
【结束语】
幕墙设计是一门繁杂的专业知识,上述内容挂一漏万,很荣幸能够就我所能与大家分享下料时的几个小技巧,通过这些细节设计问题的不断积累,我们能够逐渐丰富自己的专业知识,提高设计水平,尽快成长为幕墙中高级设计人员。具体我总结为以下四点:
(1)稳:用力做事,只能把事情做对,用心做事,才能把事情做好。所以对于我们新员工在工作的时候一定要用心做好每一个环节,扎扎实实的打好基础,要做到知其然且知其所以然。
(2)准:在下料或做细目的时候,对加工尺寸和数量一定要准确,严格要求自己,不要产生差一点也没关系这样的心里,下料要做到有理有据。
(3)新:在和其他同事学好专业知识,做好本职工作的基础上,要不断的创新,寻找更加适合自己,更加简便快捷的工作方法。
(4)合:我们新员工不仅要掌握更多的建筑幕墙专业知识,也要学会怎样与其他部门沟通,我们是一个整体,需要互相配合,互相帮助这样才能将工程做的更加完美。
以上就是我要与大家分享的设计工作的点滴经验,希望能对各位新同事有借鉴意义。同时受经验和水平所限,内容不妥之处还请各位领导、同事提出批评与指正,我会虚心接受。
参考文献:
[1] 石材幕墙工程技术规程. 辽宁省建设厅批准,2009年版
[2] 玻璃幕墙工程技术规范.中国建筑工业出版社,2003年版














