目 录
一、建筑幕墙
二、石材幕墙的做法
三、外墙涂料简介
一、建筑幕墙
建筑幕墙的定义:
由面板与支承结构体系(支承装置与支承结构)组成的、可相对主体结构有一定位移能力或自身有一定变形能力、不承担主体结构所受作用的建筑外围护墙。
幕墙的分类,《建筑幕墙》J3035规定:
1、按面板材料可分为:玻璃幕墙、金属板幕墙、石材幕墙、组合幕墙等。
2、按框架材料材质可分为:铝合金幕墙、彩色钢板幕墙、不锈钢幕墙等。
3、按固定玻璃的方式可分为:明框玻璃幕墙、隐框玻璃幕墙。
4、按工石加工程度和主体结构上安装工艺可分为构件式玻璃幕墙和单元式玻璃幕墙
建筑幕墙常规物理性能要求:
抗风压性能
水密性能
气密性能
平面内变形性能
热工性能
空气声隔声性能
光学性能
耐撞击性能
现场淋水试验
振动台抗震性能
承重力性能
二、石材幕墙的做法
石材面板的使用要求:
弯曲强度标准值小于8.0MPa的石材面板,应采取附加构造措施保证面板的可靠性。
在严寒和寒冷地区,幕墙用石材面板的抗冻系数不应小于0.8。
石材表面宜进行防护处理。对于处在大气污染较严重或处在酸雨环境下的石材面板,应根据污染物的种类和污染程度及石材的矿物化学性质、物理性质选用适当的防护产品对石材进行保护。
石材面板安装到位后,横向构件不应发生明显的扭转变形,板块的支撑件或连接托板端头纵向位移应不大于2mm。
相邻转角板块的连接不应采用粘结方式。
石材幕墙的可维护性要求
石材幕墙的面板宜采用便于各板块独立安装和拆卸的支承固定系统,不宜采用T型挂装系统。
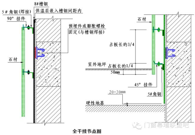
(一)干挂石材做法
干挂石材节点施工工艺说明
所有骨架钢材需热镀锌处理。
挂扣件扁钢及螺栓需热镀锌处理或为不锈钢挂件。
焊缝必须饱满牢固。
钢架焊接处必须除锈后涂刷两道防锈漆然后涂银粉漆处理。
膨胀螺栓抗拔要求必须符合规范和设计要求。
石材短槽必须机械开槽,保证槽缝宽度符合设计要求,严禁现场手提切割机开槽。
不离缝石材板缝需夹胶和座胶时横竖缝内的胶浆必须饱满完整。
石材板面需打胶时,胶缝宽窄必须一致,胶缝边缘平滑挺直无毛边。
干挂石材厚度为25mm时,单块板平方面积不宜大于1平方米。
干挂石材厚度大于25mm时,单块板平方面积不宜大于1.5平方米。
注:(1)室外花岗岩最低处必须低于室外地坪50,预防室外地面沉降时花岗岩露边; (2)槽钢离开硬性地面20-30mm。
注:膨胀螺栓横向间距根据板材调整,但最大间距不得大于1000mm。
说明:
(1)当室内干挂装饰采用20厚板时,板材加工时铣槽按节点要求;
(2)铣槽平面位置及槽宽同25厚、30厚板材要求。
20厚板(室内干挂用)铣槽要求
预埋槽式埋件方案图(一)
预埋槽式埋件方案图(二)
说明:
后植式埋件方案,要求钢板和角码先在工厂焊接加工,整体热镀锌完成后,进行现场安装。
(二)湿贴石材做法
湿贴灌浆花岗岩石材施工说明
1.石材挂板用双股18#铜丝或钢丝钩与墙面固定,墙面用手提切割机从上而下或45度方向切槽缝,用钢钉插入缝内,单块石材板纵向长度大于300mm时不得少于两处挂点。
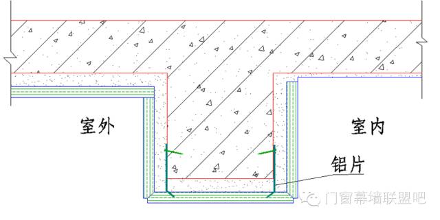
2.门窗洞及梁底朝天板应作铝片或扁铁侧面加固方案施工 (见图1)。
3.石材墙面设计要求打明胶时,板缝开三角槽缝或开小凹槽施工。
4.石材板内灌水泥砂浆前墙体浇水湿润,要求水泥砂浆配比不得低于 1:3,拌制完的砂浆以有较好的流动性为宜。
5.灌水泥砂浆时要求成45度方向灌实,所有腰线顶面板及压顶板严禁半干粉砂浆铺板,必须使用流动的水泥砂浆铺贴面板 (见图2、3) 。
6.石材墙面打胶宽度由设计确定,胶缝宽窄一致,无毛边。
7.墙面需做外保温时,石材不宜用湿灌浆方案施工。
门窗洞及梁底朝天板铺贴加固节点
湿贴石材加固方案处理节点
腰线湿贴整体花岗岩线条节点
腰线湿贴板材花岗岩线条节点
注:
线脚压顶板与墙体之间预留10-15mm,施工时,压顶板从外向墙根方向挤压施工,使水砂浆从该预留缝中挤出,未饱满处用原浆灌实,压顶板定位后,将挤出砂浆清理。
(三)湿贴文化石、乱贴石做法
说明:
1.墙体为多孔砖砌体时,砌墙时预留φ6钢筋,如未作预留,应将钢筋惯穿至室内墙面锚接。
2.墙体为砼面时,可选用植筋方案施工。
3.文化石饰面高度超过一层时,在二层圈梁部位增设一道钢筋砼支座线,如有饰面要求,可选用暗设方案施工。
外保温外墙乱贴石施工节点
(四)、石材幕墙的质量控制
钢架的制作、安装质量控制:
钢架的原材料质量:钢材的力学性能试验、钢材的规格、理论重量检查、镀锌质量检查。
焊接质量:要求焊缝饱满,不得咬边,焊渣清除干净。
防锈质量:两度防锈漆分色涂刷,便于检查验收。
石材幕墙龙骨钢材到货后,通过量外观尺寸与称重相结合的方法验收。确保钢材的各项指标符合设计和国家相关标准的规定,一经发现不符合规定的钢材作退场处理。
镀锌质量检查:
钢材表面处理、镀锌层的厚度、镀锌层的种类。
焊接质量检查:焊接原材料、焊缝的厚度、咬边的控制、焊渣的清理,对镀锌层的破坏。
石材干挂质量控制:
石材的色差、板厚控制;
不锈钢挂件材质、结构胶质量控制;
拼接板质量控制;
打胶质量控制;
首先选择一家好的石材供应商,并要求设专人驻矿区对石材荒料的质量进行把控、编号,确保每幢楼同一立面石材属同一颗或相邻荒料。
加工厂装箱前按图纸进行预排版
加工厂统一开槽、编号
按施工单位提供的排版图进行编号、装箱,运至现场。
施工单位石材上墙之前,在室内排版,由监理单位、施工单位及业主单位联合验收,验收合格后上墙安装。
不锈钢挂件、结构胶的种类及使用部位
石材幕墙施工发现开口挂件,进行拆除更换。
对拼接板进行破坏性试验,拼接处胶未断裂,石材断开,加工厂所用粘接胶强度大于石材,拼接板安全可靠。
打胶样板先行
工程分管人员对每条胶缝进行检查
切开胶缝抽查,石材拼缝内填塞泡沫棒,胶厚度控制在3mm以上。
拼接板部位打胶加强
(五)、玻璃幕墙的质量控制:
玻璃质量、型材质量、五金件质量、加工安装精度。
幕墙的防渗漏控制:幕墙发生雨水渗漏要具备三个要素,即缝隙、雨水和作用力.
幕墙的渗漏水主要由于打胶不到位、石材拼接板渗漏水所致、部份由于打胶时表面未清理干净或未干透,造成胶开裂、其它专业开孔后修补不到位引起渗漏。
幕墙耐候密封胶注胶质量差,造成胶体开裂、孔隙,产生漏水。主要是打胶时没有按照打胶工艺进行,如注胶部位不清洁,胶缝深度过大形成三面粘接,胶在粘接固化前受到灰尘沾染或损伤,填缝材料深浅不一、厚度不合要求,缝内注胶不密实、不均匀,个别漏封;硅酮耐候密封胶质量不过关也是胶缝渗水的原因之一。
淋水试验图示
成品保护:
幕墙工程的成品保护主要分为材料的出厂保护、材料运输保护、材料堆放保护、安装过程中的材料(成品)保护、安装完成后的成品保护。
幕墙工程的成品保护不力主要表现在施工现场材料堆放、施工现场材料运输、安装完成后的成品保护这三方面。
施工现场材料堆放:受现场场地狭小的限制,玻璃、石材大都堆放在施工区域和道路两边,由于交叉施工高峰期时有四十多家施工单位,进出的人流物流不可避免地对玻璃、石材碰撞造成损坏。
施工现场材料运输:由于玻璃、石材为不耐撞品,玻璃、石材大都采用手推平板车运输至垂直运输人货梯处,再分块搬运通过货梯分发至各楼层,玻璃因搬运碰撞破碎比较多。
安装期间和安装完成后:施工期间因交叉施工单位较多,对幕墙龙骨、玻璃、铝板的损坏较多。
幕墙进度控制:主要通过幕墙施工图设计、招投标进度、实施进度等方面进行总结:
施工图设计与招投标进度:由于建筑施工图与幕墙施工图由两家单位设计,幕墙设计是在建筑设计的基础上深化,但通常绿城设计院在过程中对外立面的调整非常频繁,导致幕墙施工图在设计及实施过程中均不断地反复。
工程大量变更是进度控制的大忌,应尽量减少不必要的变更,及时处理必须的变更,为工程快速推进扫清障碍,在实施过程中全面监控劳动力配备情况、设备材料到位情况、加工厂的加工情况,应重点监控备货周期(生产周期较长)的材料(如型材、玻璃、石材);及时地理清并化解与其它参建单位在技术上及管理上的矛盾,(总包单位、精装修单位、安装单位、景观市政单位、室外照明单位等);想施工单位所想,急施工单位所急,换位思考,取得最大限度的相互理解。
三、外墙涂料简介
外墙涂料发展趋势:
随着国内经济的飞速发展,房地产行业也随之进入了高速发展阶段,建筑色调也由过去单一的灰色演变成现在的色彩斑斓。以往外墙的装饰材料主要是瓷砖、石材、玻璃幕墙、铝塑板等,其中瓷砖占绝对优势,但是由于这些装饰材料相对于涂料而言造价高、而且还存在一定的不安全因素。相比之下涂料具有环保、色彩丰富、表现力强,维护相对简单等优点,现在有些地方相关职能部门做出了限制高层建筑使用瓷砖的规定,从发达国家的现状与发展趋势看,在外墙装饰材料中涂料大有一统天下之势。
涂料的基本概念:
涂料是指一类应用于物体表面而能结成坚韧保护膜的物料的总称。一般将用于建筑物内墙、外墙、顶棚及地面的涂料称为建筑涂料。习惯上人们把传统的溶剂型漆称为油漆,而把新型水性漆(尤其是建筑涂料)称为涂料。,现阶段技术分类将传统的油漆和现在的涂料统称为涂料。
合成树脂乳液外墙涂料:
是以合成树脂乳液作为主要成膜物质,加入着色颜料、体质颜料和助剂,经过混合、研磨而制得的外墙涂料。
按涂料的质感分为:
薄质乳液涂料(乳胶漆)、
厚质涂料
彩色砂壁状涂料等。
溶剂型涂料:
是以高分子合成树脂为主要成膜物质,有机溶剂为分散介质,加入一定量的着色颜料、体质颜料和助剂,经混合、搅拌溶
解、研磨而配制成的涂料。
外墙涂料类型:
(一)名称:溶剂型外墙涂料
优点:生产简易,施工方便,涂膜光泽高
缺点:要求墙面特别平整,否则易暴露不
平整的缺陷;有溶剂污染
使用范围:工业厂房
(二)名称:乳液型外墙涂料
优点:品种多,无污染,施工方便
缺点:光泽差,耐沾污性能较差
适用范围:通用型外墙涂料
(三)名称:砂壁状外墙涂料
(又称外墙喷砂)
优点:仿石型外观。有优良的耐候性、耐碱性、保色性,以及极高的附着强 度
缺点:耐沾污性差,施工干燥期长
适用范围:厂房、办公室、住宿、宾馆、学校、商店等建筑物的外墙装饰。
(四)名称:水溶性高级喷磁型
优点:喷瓷型外观,高光泽, 防水性,立体图案,具有类似瓷砖的装饰效
缺点:施工较复杂,价格较高
适用范围:建筑等级较高的外墙
(五)名称:桔皮纹中层涂料
(六)名称:弹性外墙涂料
特性说明:
1、可以通过不同施工要求,涂成桔皮纹状模样或平滑状摸样,内、
外墙均适用。
2、含有高延伸性,能弥盖细微裂缝。
3、涂膜具有憎水性、能防止雨水渗透。
4、涂膜具有较高耐污染性和耐洗刷性。
(七)浮雕花纹骨浆涂料
概念:是一种用多种天然粉料加入粘接剂及助剂,加工而成的中层骨料,其附着力高,耐久性好,可塑性强,可根据要求涂装成各种大小不同,形状各异的图案,对墙面要求不高,可有效改善墙面装饰效果。
适用范围:别墅、公寓、住宅小区、办公楼等建筑物外墙装饰。
(八)真石漆
真石漆是以自然界中的天然岩石为原料制作的高档外墙喷砂,然后再在表面罩上溶剂型罩面清漆而成。利用天然岩石本身具有的天然颜色及超强的硬度来表现涂料的色彩特征,其效果具有天然石材的质感;替代水刷石和瓷砖。具有天然真实的自然色泽,给人以高雅,和谐,庄重之美感,适合于各类建筑物的
氟碳外墙漆性能特点:
1、耐候性:与传统的涂料相比,氟碳漆具有更好的耐候性,抗粉化、抗黄变、可在户外使用20年左右,外观仍完好如初熠熠生辉。
2、耐沾污性:氟碳涂层具有优异的自我润滑作用,粘附性小不易被污染,在恶劣的环境下即使被污染也非常容易清洗。
3、耐腐实性和耐化学品性:氟碳涂料的耐酸、耐碱、耐化学品腐蚀性,是其它涂料所无法相比的。
4、装饰性:应用各种配套方案可以形成实体色、金属色、浮雕花纹、桔皮花纹和仿外墙铝板等装饰效果,光泽率和色彩的持久稳定,大大提升了装饰效果。
5、良好的施工性:氟碳涂料可喷涂、辊涂、刷涂(金属色漆和罩面漆只能喷涂)。具有优异的附着力且常温固化,施工方便,在-5℃的气温时也能进行施工。
6、极高的使用价值:氟碳涂料使用寿命长达20年之久,因此可省去大量的维护和修理费,具有极高的性价比。
7、与传统的外墙贴铝塑板相比,操作更简易,翻新容易。造价比铝塑板低很多,又可达到相同的效果。质量轻,不会给墙体带来沉重的负担,不存在铝塑板坠落的危险
外墙漆与内墙漆的区分:
1、外墙漆注重耐晒,外墙漆要求有抗水性能,要求有自涤性。漆膜要硬而平整,脏污一冲就掉。
2、外墙乳胶漆用于涂刷建筑外立面,所以最重要的一项指标就是抗紫外线照射,要求达到长时间照射不变色。而内墙漆用于室内墙面粉刷,对抗紫外线要求比起外墙漆就低得多。
3、内墙乳胶漆对耐擦洗的性能要求高,家居生活中较易弄脏墙面,可随时用水擦拭。
4、内外墙漆的弹性都很重要,有弹性可防止由于温度、气候变化引起的开裂。
5、外墙漆能用于内墙涂刷使用是因为它也具有抗水性能,而内墙漆却不具备抗晒功能,所以不能用于涂刷外墙.
油漆:
主要成膜物质以油脂、分散于有机溶剂中的合成树脂或混合树脂为主,一般人们常称之为“油漆”
油漆的分类:
(一)、清油,又名熟油、调漆油。可作为原漆和防锈漆调配时使用的油料,也可单独使用。加入适量颜料可配成带色清油。
(二)、厚漆---又称铅油。
它是颜料与土性油混合研磨而成,需要加油、溶剂等稀释后才能使用,被广泛用于面层的打底,适用于要求不高的建筑物及木质打底漆,水管接头的填充材料。
(三)、调合漆
概念:是在清漆的基础上加入无机颜 料制成。因漆膜光亮、平整、细腻、坚硬, 瓷漆色彩丰富,附着力强。
优点:质地较软,均匀,稀稠适度,耐腐蚀,耐晒,长久不裂,遮盖力强,耐久性好,施工方便。
缺点:就是耐候性差,硬度差,光泽不是很高调合漆很便宜
(四)、清漆
俗称凡立水,不含着色物质的一类透明涂料,光泽好,成膜快,用途广。涂于物体表面后,形成具有保护、装饰和特殊性能的涂膜,干燥后形成光滑薄膜,显出物面原有的花纹。用于家具、地板、门窗等的涂装。
清漆的类型:聚氨脂清漆、酚醛清漆 、醇酸清漆、硝基清漆。
涂料施工:
1.基面处理:牢固、干燥、清洁、平整。不能有松脱物质、空鼓、裂缝、粉化等现象。
2. 刮腻子:底腻子(灰色)目的在于墙面抹平,面腻子(白色)用于打磨。
3.上底漆 :封闭墙面的碱性,提高面涂料与墙面的附着力,避免因墙体过于干燥而大量吸收涂料,并保证吸料量相当 。同时保证饱满性。
刮腻子注意要点:
腻子:分道刮,刮腻子不能刮的太厚,太厚容易开裂。而且找平腻子必须压实,刮打磨腻子时,不能刮的过厚,预防引起起泡,应尽量刮薄,压实,尽量刮平。刮完打磨腻子后,6-24小时之内打磨,如固化后再打磨,会破坏腻子的密实度,造成腻子表面疏松,使涂料的附着力降低,甚至可以整块撕下来。打磨后,用清水养护2-3次,养护3-5天再上底漆,面漆。
面漆的施工:
上面漆的方式:刷涂、滚涂、喷涂。
刷涂一般用在最后收尾的时候补阴阳角。喷涂效率比较高,喷出来的墙面比较平整美观。但是喷涂的最大缺点就在于漆膜比较薄,容易被碰坏,而且难以补漆,相对来说用量也要大一点(有损耗)。一般来说,还是推荐用滚涂的方式施工。
上面漆的时候,注意2个方面,色浆一定要用调色机搅拌均匀后才能涂刷(如果放久了的调色好的涂料,最好涂刷之前重新搅拌一下);还有就是兑水的比例,一定要按照该种涂料的施工说明来进行,不要让工人根据经验来进行兑水。如果兑水过多,会造成漆膜附着力不够,开裂、脱落等。














